Mosazný rozdělovač podlahového topení s hlavicemi a průtokoměry
Mosazný rozdělovač podlahového topení pro 2 - 12 okruhů
| Kategorie: | Podlahové rozdělovače |
|---|---|
| Záruka: | 2 roky |
| Materiál: | mosaz |
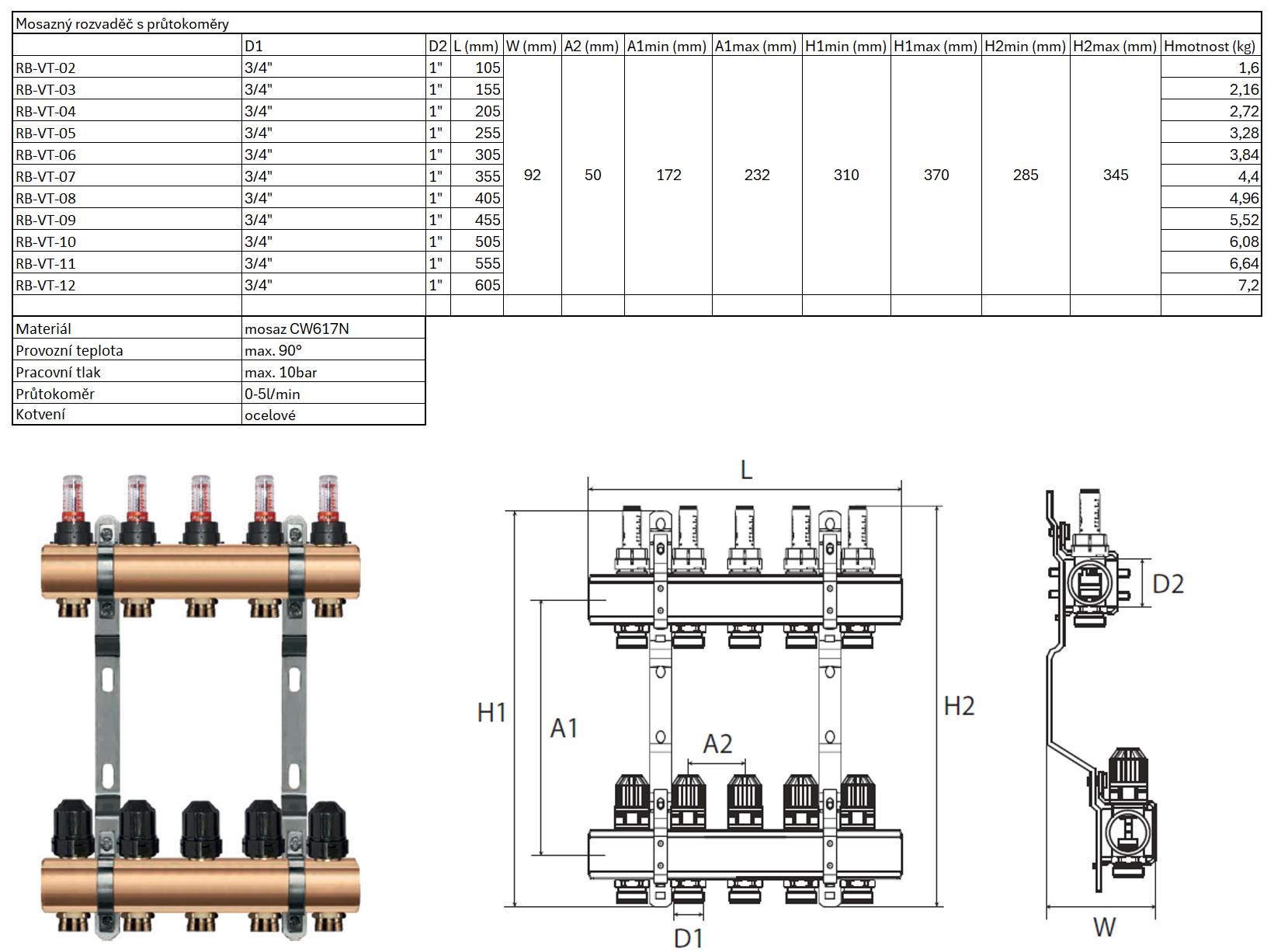
Sestava mosazného rozdělovače s připojovacími rozměry G 1" x G 3/4" s eurokonusy je určena pro 2–12 okruhů. Připojení jednotlivých větví potrubních rozvodů na rozdělovači je 3/4" s eurokonusem.
Mosazný rozdělovač je vhodný jak pro podlahové vytápění, tak pro napojení otopných těles (radiátorů). Mezi hlavní výhody patří jednoduchá montáž a také snadné seřízení jednotlivých topných okruhů díky průtokoměrům. Rozdělovače lze doplnit o kulové kohouty se šroubením a teploměry v přímém i rohovém provedení a také o vypouštění a odvzdušňovací ventily.
Rozdělovače jsou určeny pro rozvod teplovodního podlahového vytápění a pro připojení otopných těles (radiátorů). Skládají se ze dvou hlavních částí:
Těla topné vody a vratné vody jsou tvořena tělem rozdělovače, průtokoměry, regulačními ventily a konzolí.
Průtokoměry slouží k nastavení průtoku topné vody v l/min a tím k vyrovnání rozdílů mezi jednotlivými topnými smyčkami (vyvážení systému). Po vytažení bílé pojistky na průtokoměru směrem nahoru otáčíme spodní částí průtokoměru po směru hodinových ručiček, čímž průtok snižujeme až k případnému úplnému uzavření. Otáčením proti směru hodinových ručiček průtok naopak zvyšujeme až k případnému plnému otevření. Na průhledné části průtokoměru hladina vody zobrazuje aktuální průtok v l/min. Vzhledem k tomu, že jednotlivé smyčky mohou být různě dlouhé a mít odlišné tlakové ztráty, doporučuje se nastavit u všech smyček stejný průtok, aby byla zajištěna stejná rychlost natápění všech okruhů. Maximální provozní tlak je 1 MPa.
Rozdělovače lze osadit kulovými kohouty se šroubením s přímým nebo rohovým připojením, v mosazném či niklovaném provedení, případně také ve variantě s teploměry, aby výsledná sestava co nejlépe vyhovovala Vašim požadavkům.
Pro osazení 1ks kompletního rozdělovače je zapotřebí kombinovat následující položky:
- rozdělovač s požadovaným množstvím okruhů - 1ks
- čerpadlová/směšovací skupina - 1ks
- kulový kohout - 2ks (modrý/červený, rohové nebo přímé provedení)
- sada odvzdušnění a vypouštění - 2ks
- svěrné šroubení eurokonus - 2x počet okruhů
| Mosazný rozvaděč s průtokoměry | ||||||||||||
| Materiál | mosaz CW617N | |||||||||||
| Provozní teplota | max. 90° | |||||||||||
| Pracovní tlak | max. 10bar | |||||||||||
| Průtokoměr | 0-5l/min | |||||||||||
| Kotvení | ocelové |
Hodnocení produktu
Buďte první, kdo napíše příspěvek k této položce.
Diskuze
Buďte první, kdo napíše příspěvek k této položce.



